豊治コミュニティセンター
豊治コミュニティセンターは令和2年2月に移転しました。(以下は移転後の所在地等)
所在地
中川区江松四丁目624番地
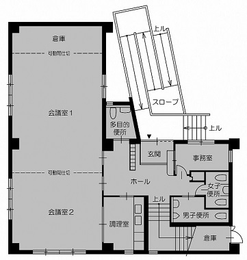
施設内容
- 第1会議室(51.84平方メートル)
- 第2会議室(34.56平方メートル)
- 第3会議室(47.25平方メートル)
- 第4会議室(16.20平方メートル)
- 調理室
平面図
1階

2階

利用区分
午前(午前9時から正午)、午後(午後1時から午後4時)、夜間(午後6時から午後9時)
休館日
月曜日、12月29日から1月5日、運営協議会が必要と認めた日(事前に掲示板で通知)
交通案内
市バス「江松」より徒歩11分
お問い合わせ
電話番号052-302-5450
お申込みは、土曜日・日曜日の午後1時から午後3時に事務室で(電話予約不可)
地図
このページに関するお問い合わせ
中川区役所 区政部 地域力推進課 地域力推進担当
電話番号:052-363-4319 ファクス番号:052-363-4316
Eメール:a3634319@nakagawa.city.nagoya.lg.jp
中川区役所 区政部 地域力推進課 地域力推進担当へのお問い合わせ