本陣コミュニティセンター
本陣コミュニティセンターのご紹介です。

所在地:中村区松原町4丁目68番地
電話番号:052-482-0901
施設内容:会議室3、和室1
休館日:毎週日曜日、祝祭日、年末年始等
駐車場:2台
利用時間:
(午前)午前9時から正午
(午後)午後1時から5時
(夜間)午後6時から9時
交通案内:市バス中村巡回、名駅29「則武本通二丁目」より徒歩7分
-
本陣コミュニティセンター周辺地図(外部リンク)
-
名古屋市交通局のページ(外部リンク)
アクセス方法の確認は名古屋市交通局のなごや乗換ナビ、なごや地図ナビをご利用ください。
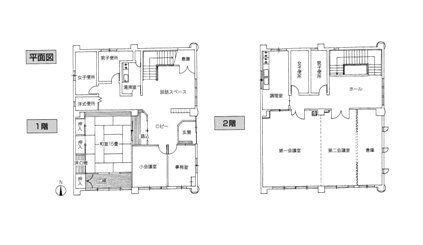
本陣コミュニティセンター平面図

本陣コミュニティセンター1階 和室

和室(15畳)
本陣コミュニティセンター2階 第1会議室

第1会議室(40.15平方メートル)
隣の第2会議室とは、可動式の間仕切りで区切られています。
間仕切りを取ると、大きな会議室として使うことができます。
本陣コミュニティセンター2階 第2会議室

第2会議室(広さ26.35平方メートル)
お問合せ先
本陣コミュニティセンター
郵便番号453-0021
名古屋市中村区松原町4丁目68番地
電話番号:052-482-0901
(注)休館日、利用者のない場合などは、不在のときがあります。あらかじめご了承下さい。
このページに関するお問い合わせ
中村区役所 区政部 地域力推進課 地域力推進担当
電話番号:052-433-2741 ファクス番号:052-433-2086
Eメール:a4332741@nakamura.city.nagoya.lg.jp
中村区役所 区政部 地域力推進課 地域力推進担当へのお問い合わせ