原コミュニティセンター
施設案内

- 所在地
原4丁目1902番地の3 - 施設内容
第1会議室、第2会議室、菊の間(和室)、桜の間(和室)、談話室 - 利用区分
午前(午前9時から正午)、午後(午後1時から5時)、夜間(午後6時から9時)
(注)運営委員会が認めたときは時間外利用ができます。 - 休館日
毎週日曜日、祝日、夏季(8月13日から17日)、年末年始(12月26日から1月5日)
(注)運営委員会が必要と認めた場合、臨時休館日あり - アクセス
- 地下鉄「原」駅より徒歩10分
- 市バス「原中学校西」または「平針新屋敷」下車すぐ
- お問い合わせ
電話番号052-807-8033(ファクス番号も同じ)- (注)空室状況の照会、利用申し込みなどは上の電話番号へお問い合わせください。
- (注)受付は、休館日を除いた午前9時から午後5時まで。
お知らせ
原コミュニティセンターの定期的なご利用が容易な曜日と時間帯をご案内いたします。
- 月曜日 午後(午後1時から午後5時)
- 火曜日 午後(午後1時から午後5時)
詳細は原コミュニティセンターに直接お問い合わせください。
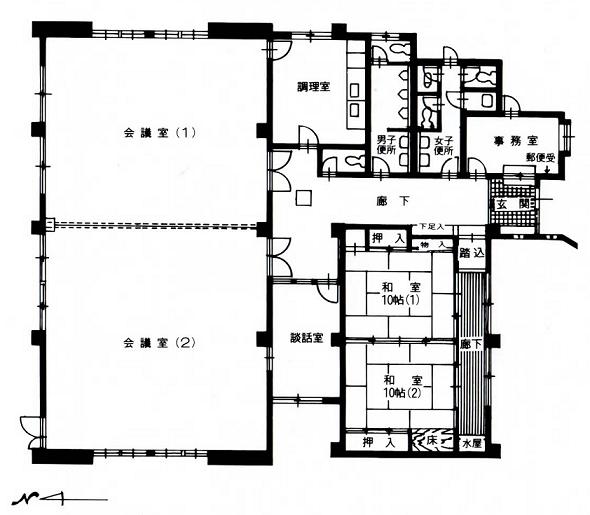
平面図

施設詳細
第1会議室、第2会議室

第1会議室(68.35平方メートル)
第2会議室(82.24平方メートル)
第1会議室と第2会議室は可動式の間仕切りで区切られています。
間仕切りを取ると、左の写真のように大きな会議室としてご利用いただけます。
談話室

談話室(14.22平方メートル)
案内地図

詳細な周辺地図については下の関連リンクをご覧ください。
関連リンク
このページに関するお問い合わせ
天白区役所 区政部 地域力推進課 地域力推進担当
電話番号:052-807-3821 ファクス番号:052-801-0826
Eメール:a8073821@tempaku.city.nagoya.lg.jp
天白区役所 区政部 地域力推進課 地域力推進担当へのお問い合わせ