市政資料館バリアフリー情報
市政資料館のバリアフリーに関する情報です。
バリアフリー情報 概要
市政資料館のバリアフリー情報の概要をまとめています。
トイレや出入口の状況、アクセス方法、建物平面図などを掲載しております。
- 常設展示室(3階)
- 一般展示室(3階)
- 集会室(2階)
- 喫茶室(2階)
- 車いす対応トイレ(1階)
- 身障者用駐車場
- アクセスできる出入口 正門(南側)
- アクセスできる出入口 西門
- アクセスできる出入口 東門
- エレベーター
- 貸出用車いす
- 市政資料館 建物平面図 1階から3階
- アクセス(公共交通機関)
詳細は、以下のとおりです。
1)常設展示室(3階)
常設展示室は、旧裁判所庁舎・復原法廷・市制施行以来の歩みを展示しています。
第4常設展示室・第5常設展示室

開館中は扉を開放しています。扉の有効幅は85センチメートルです。出入口段差は3センチメートルです。段差解消のため、擦り付け板があります。
第11常設展示室

出入口段差は3センチメートルです。段差解消のため、擦り付け板があります。
2)一般展示室(3階)
一般展示室は、全日1,000円から貸出しています。
第1一般展示室

一般展示室は催事がある場合に、扉を開放しています。扉の有効幅は85センチメートルです。出入口段差は2センチメートルです。段差解消のため、擦り付け板があります。
3)集会室(2階)
集会室は半日1,000円から貸出しています。集会室内での飲食は可能です。
第2集会室

扉の有効幅は85センチメートルです。出入口段差は3センチメートルです。段差解消のため、擦り付け板があります。

すべての集会室で、机といすの室内での移動は自由に行えます。
机高さは、床から天板まで70センチメートル、棚下まで60センチメートルです。机の奥行きは58センチメートルです。
第4集会室

出入口の有効幅は88センチメートルです。出入口段差は3センチメートルです。上がりかまちは1段で、高さは12センチメートルです。畳の段差は4センチメートルです。
4)喫茶室(2階)

喫茶室は2階北側の中央部にあります。内開き扉の有効幅は83センチメートルです。季節により開放している場合があります。出入口段差は3センチメートルです。段差解消のため、擦り付け板があります。

店全体席数は12席です。テーブルといすは移動可能です。スタッフにお声掛けください。テーブル高さは天板まで66センチメートルです。
- メニュー:コーヒー、紅茶、サンドウィッチなど
- 営業時間:午前9時から午後4時00分
- 定休日:市政資料館の休館日に準じる
5)車いす対応トイレ(1階)

車いす対応トイレは1階にあります。便座の高さは約43センチメートルです。オストメイト対応設備も設置しています(ベビーベッド設備はありません)。

ペーパーホルダー・緊急呼出ボタン・洗浄ボタン等です。緊急呼び出しボタンは床面近くにも設置してあります。

扉の内側からの画像です。照明スイッチの高さは床から約94センチメートルです。また、鍵の高さは約65センチメートルです。

車いす対応トイレは正面中央に位置しています。その左側が一般男性用トイレ、右側が一般女性用トイレです。

車いす対応トイレは、1階西側にあります。エレベーターを降り、左手奥に進み、右側にあります
6)身障者用駐車場
身障者用駐車場1台有り。駐車場入口は北西側です。
7)アクセスできる出入口 正門(南側)

市政資料館の周囲は名城公園の一部になっています。名城公園の南側に正門があります。

スロープの勾配は8分の1(約7度)です。有効幅は1メートル7センチです。長さは4メートル50センチで、扉は常時開放しています。

市政資料館の正面左手(建物南面西側)に、バリアフリー出入口を設置しています。正面玄関の車寄せを上がりますと、館内入口に段差がありますので車いすの通行ができません。

利用時間は、午前9時から午後5時までです。(正面玄関の利用時間と同じです。)
出入口の有効幅は1メートル42センチです。スロープの勾配は10分の1(約6度)です。有効幅は1メートル50センチ、長さ3メートルです。

エレベーターご利用の方はこちらの出入口をご利用いただけます。出入口は、両開き扉です。扉はやや重く、勢いよく閉まりますのでご注意ください。車いすでのご利用は、インターホンでお申し付けください。スタッフがお手伝いさせていただきます。
お帰りの際は、最寄りのスタッフまでご連絡ください。
インターホンの高さは94センチメートルです。

市政資料館の正面左手(建物南面西側)に、バリアフリー出入口を設置しています。
8)アクセスできる出入口 西門

地下鉄名城線「名古屋城駅」からお越しの場合は、駐車場手前の歩行者用通路を駐車場に沿ってお進みください。

身障者用駐車場の奥側スロープを通過後、建物正面にお進みください。

通路を進んでいきますと、バリアフリー出入口に出ます。
9)アクセスできる出入口 東門

北東方向に東門があります。ブロックで整備された通路は、敷地内の北側を通り、建物の西側へ迂回する通路になります。
10)エレベーター

車いす対応エレベーターを1基、設置しています。操作盤(外)高さは91センチメートルです。

定員は11人です。内部の操作盤は、高さ1メートルです。
11)貸出用車いす
貸出用車いすは3台有ります。使用ご希望の方は、インターホンまたはお近くのスタッフまでお尋ねください。
(貸出用車いすは予約制ではありません)
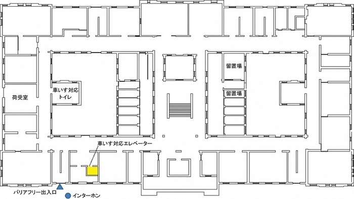
12)市政資料館 建物平面図 1階から3階

1階にはバリアフリー出入口、車いす用トイレ、留置場があります。

2階には事務室、集会室、閲覧室、喫茶室、休憩室、常設展示の大地の塔があります。一般用トイレは建物の東側と西側にそれぞれあります。

3階には常設展示室、一般展示室、授乳室があります。一般用トイレは建物の東側と西側にそれぞれあります。
13)アクセス(公共交通機関)

2番出口に車いす対応エレベーターが有ります。エレベーターを降り、右手(東向き)に進むと、名古屋拘置所に突き当ります。そこから右手(南向き)に進むと左手に市政資料館があります。徒歩約8分です。
このページに関するお問い合わせ
総務局 行政DX推進部 市政資料館 庶務担当
電話番号:052-953-0051 ファクス番号:052-953-4398
Eメール:a9530051-01@somu.city.nagoya.lg.jp
総務局 行政DX推進部 市政資料館 庶務担当へのお問い合わせ