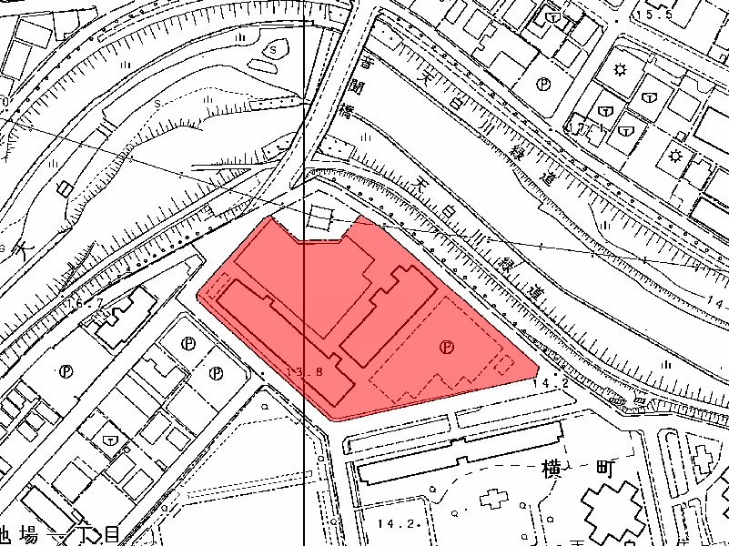
団地認定(16-28)パークシティ植田
天白区横町102-1 他1筆
区域の地名地番(当初認定申請時)
天白区横町102-1 他1筆
台帳番号
16-28
認定
平成6年2月24日
番号
2-3

お問合せ先
問合せ先:住宅都市局建築指導課市街地建築係【※建築基準法第86条に係る認定についてのみ。入居に関するお問合わせは承っておりません。】
電話番号:052-972-2918【※】
ファクス番号:052-972-4159
応対時間:月曜日から金曜日(祝日及び休日を除く。)の午前8時45分から午後5時15分まで(午後0時から午後1時までを除く。)ただし、ファクス及び電子メールに関しては常時受付いたします。
電子メールアドレス:a2918@jutakutoshi.city.nagoya.lg.jp
問合せ先からの返信が必要な場合は、必ず本文内に連絡先(電話番号、電子メールアドレスなど)を記載してください。
このページに関するお問い合わせ
住宅都市局 建築指導部 建築指導課 市街地建築担当
電話番号:052-972-2918 ファクス番号:052-972-4159
Eメール:a2918@jutakutoshi.city.nagoya.lg.jp
住宅都市局 建築指導部 建築指導課 市街地建築担当へのお問い合わせ